Deze woning wordt te koop aangeboden via Van der Duim makelaardij.
Bent u op zoek naar een moderne tussenwoning met serre en multifunctionele ruimte?
Dan is deze woning wellicht iets voor u!
OMGEVING
Deze woning is gelegen in een aantrekkelijke en groene woonstraat in de wijk Stratum in Eindhoven. De centrale ligging biedt een perfecte combinatie van rust en gemak en belangrijke voorzieningen bevinden zich in de directe omgeving.
Op loopafstand vindt u diverse winkels, supermarken en horecagelegenheden. Het centrum van Eindhoven ligt op korte afstand en voorziet in een uitgebreid winkelaanbod. Ook scholen, sportvoorzieningen en medische faciliteiten zijn binnen handbereik.
De nabijgelegen uitvalswegen (A2, A50 en A58) zorgen voor een snelle verbinding en openbaar vervoervoorzieningen zijn nabij. Verschillende bushaltes en het NS-station Eindhoven Centraal bevinden zich op korte afstand.
Laat u verrassen door deze moderne woning in een zeer leuke en gewilde wijk van Eindhoven.
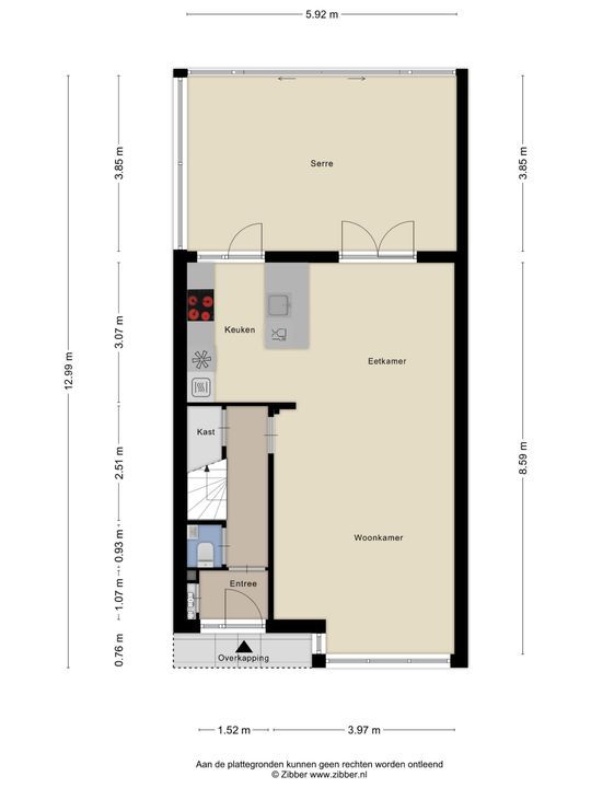
INDELING
Vanaf de openbare weg via een voetpad toegang tot de entree van de woning. In de hal treft u de moderne meterkast, de garderobe en het betegelde gastentoilet met hangend closet en een fonteintje. Op de vloer in de hal ligt een keurige, fraaie houten visgraatvloer die over de gehele begane grond is doorgelegd. De wanden en het plafond zijn glad gestukadoord in een lichte kleurstelling afgewerkt.
Woonkamer
Via een moderne tussendeur met beglazing bereikt u de fijne living met grote raampartijen aan de voor- en achterzijde. De zithoek is aan de voorzijde van de woning gesitueerd met fraai uitzicht op het tegenover de woning gelegen openbaar groen park. In de woonkamer ligt dezelfde vloer als in de hal en de wanden en het plafond zijn eveneens in lichte kleurstelling afgewerkt. Het eetgedeelte bevindt zich aan de achterzijde van de woning, waar een grote raampartij prettig lichtinval biedt en zicht op de achtertuin. Aansluitend bevindt zich de open keuken.
Keuken
De luxe uitgevoerde en moderne keuken is aan de achterzijde van de woning gesitueerd, in een wandopstelling geplaatst met werkeiland en bar. De keuken heeft voldoende werkruimte en is voorzien van de volgende apparatuur, te weten:
- 4 pits inductie kookplaat;
- RVS afzuigkap;
- Spoelbak met ACE warmwaterkraan;
- Vaatwasser;
- Koelkast;
- Combi oven/magnetron.
Het fraaie en zeer ruim uitgevoerde aanrechtblad biedt veel praktische werkruimte en tezamen met de onder- en bovenkasten en lades is deze fraaie keuken compleet. Boven het werkblad is sfeervolle inbouwverlichting aanwezig.
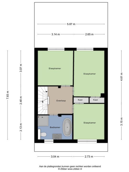
1E VERDIEPING
Via de vaste trapopgang toegang heeft u toegang tot de overloop op de eerste etage waaraan drie slaapkamers en een badkamer aanwezig zijn. Op de overloop en de slaapkamers ligt een moderne laminaatvloer, alle wanden en plafonds zijn in lichte kleurstelling afgewerkt en de ouderslaapkamer is voorzien van airconditioning.
Badkamer
De luxe en moderne badkamer is ruim van opzet en uitgerust met een ligbad, inloopdouche,wastafel met meubel en hangend toilet. Een raampartij geeft daglichttoetreding en extra natuurlijke ventilatiemogelijkheden.
2E VERDIEPING
Via een vaste trapopgang bereikt u de overloop van de tweede verdieping. Op de voorzolder bevinden zich de witgoedaansluitingen, unit zonnepanelen en de CV-installatie.
Slaapkamer 4
Deze royale slaapkamer is speels ingericht en voorzien van een grote dakkapel, waardoor er fijn natuurlijk licht binnenkomt. Wanden en plafond zijn voorzien van stukwerk en de vloer is belegd met click-pvc.
Serre
Vanuit de keuken heeft u middels een loopdeur toegang naar de prachtige moderne serre. Dankzij de grote glazen schuifwand geniet u het hele jaar door van een naadloze overgang tussen binnen en buiten. De ruimte is voorzien van een stijlvolle tegelvloer, wat zorgt voor een strakke en onderhoudsvriendelijke afwerking. De serre biedt een overvloed aan natuurlijk licht, waardoor het een ideale plek is om te ontspannen, te werken of te genieten van een gezellige maaltijd met familie en vrienden. Kortom, een sfeervolle en veelzijdige toevoeging aan de woning!
Tuin
De fraai aangelegde tuin biedt een perfecte mix van groen en comfort. Een onderhoudsvriendelijk gedeelte met kunstgras wordt afgewisseld met borders vol beplanting, wat zorgt voor een levendige en sfeervolle uitstraling. Het gezellige zitgedeelte is een ideale plek om te ontspannen en te genieten van de buitenlucht.
Aan de achterzijde bevindt zich een praktische berging én een multifunctionele ruimte, perfect te gebruiken als praktijkruimte, hobbyruimte of thuiswerkplek. Deze ruimte is voorzien van elektra, waardoor de mogelijkheden eindeloos zijn!
Algemeen
- Kindvriendelijke woonomgeving;
- Vrij uitzicht op openbaar groen aan voorzijde;
- Luxe keuken;
- Modern sanitair;
- Vier slaapkamers;
- Goed onderhouden;
- Privacy biedende achtertuin met multifunctionele ruimte.
Kortom, zeker een woning die een bezichtiging waard is!
Verkopers verlangen een waarborgsom/bankgarantie ter grootte van 10% van de koopsom.
Wilt u weten wat de verkoopmogelijkheden van uw eigen woning zijn? Neem gerust eens contact met ons op voor een vrijblijvend verkoopadvies.
Ons kantoor besteedt de uiterste zorg aan de betrouwbaarheid en actualiteit van de gegevens in de door ons samengestelde verkoopbrochure. Onjuistheden en onvolledigheden kunnen echter voorkomen. Aan de door ons gepresenteerde gegevens waaronder de teksten en plattegronden kunnen geen rechten worden ontleend. Twijfelt u aan de juistheid van de gegevens, vraag dan hoe deze zijn verkregen of kom nog een keer kijken. Probeer te allen tijde alle voor u relevante informatie vooraf te verkrijgen.
English Version
This property is offered for sale through Van der Duim Makelaardij.
Are you looking for a modern terraced house with a conservatory and a multifunctional space?
Then this property might be just what you’re looking for!
LOCATION
This home is situated in an attractive and green residential street in the Stratum district of Eindhoven. Its central location offers the perfect balance between peace and convenience, with essential amenities close by.
Within walking distance you will find various shops, supermarkets, and restaurants. Eindhoven city centre is just a short distance away and offers an extensive range of shops. Schools, sports facilities, and medical services are also within easy reach.
Nearby arterial roads (A2, A50, and A58) provide quick connections, and public transport facilities are close at hand. Several bus stops and Eindhoven Central Station are located nearby.
Be pleasantly surprised by this modern home in a very attractive and popular neighbourhood of Eindhoven.
LAYOUT
From the public road, the entrance to the property is accessible via a footpath. The hallway features a modern meter cupboard, a wardrobe area, and a tiled guest toilet with wall-hung toilet and washbasin. The hallway floor is finished with a neat and attractive wooden herringbone floor, which continues throughout the entire ground floor. Walls and ceilings are smoothly plastered and finished in a light colour scheme.
Living Room
Through a modern interior door with glass panels you enter the pleasant living area with large windows at both the front and rear. The seating area is located at the front of the house and offers a lovely view of the public green park opposite the property. The same flooring as in the hallway is used here, and the walls and ceiling are also finished in light colours.
The dining area is located at the rear of the house, where a large window provides plenty of natural light and views of the backyard. Adjacent to this is the open kitchen.
Kitchen
The luxuriously finished, modern kitchen is located at the rear of the house and is arranged in a wall layout with a work island and bar. The kitchen offers ample workspace and is equipped with the following appliances:
- 4-burner induction hob;
- Stainless steel extractor hood;
- Sink with ACE boiling water tap;
- Dishwasher;
- Refrigerator;
- Combination oven/microwave.
The stylish and very spacious countertop offers plenty of practical work surface and, together with the lower and upper cabinets and drawers, completes this beautiful kitchen. Atmospheric built-in lighting is installed above the countertop.
FIRST FLOOR
Via the fixed staircase you reach the landing on the first floor, which provides access to three bedrooms and a bathroom. The landing and bedrooms are finished with a modern laminate floor. All walls and ceilings are finished in light colours, and the master bedroom is equipped with air conditioning.
Bathroom
The luxurious and modern bathroom is spacious and fitted with a bathtub, walk-in shower, washbasin with vanity unit, and wall-hung toilet. A window provides natural daylight and additional ventilation.
SECOND FLOOR
A fixed staircase leads to the landing of the second floor. On the landing you will find the laundry connections, the solar panel unit, and the central heating system.
Bedroom 4
This generous bedroom has a playful layout and features a large dormer window, allowing plenty of natural light to enter. The walls and ceiling are plastered, and the floor is finished with click PVC flooring.
Conservatory
From the kitchen, a door provides access to the beautiful modern conservatory. Thanks to the large glass sliding wall, you can enjoy a seamless transition between indoors and outdoors all year round. The space features a stylish tiled floor, providing a sleek and low-maintenance finish. The conservatory offers an abundance of natural light, making it an ideal place to relax, work, or enjoy a cosy meal with family and friends. In short, a charming and versatile addition to the home!
Garden
The beautifully landscaped garden offers a perfect mix of greenery and comfort. A low-maintenance section with artificial grass is combined with planted borders, creating a lively and atmospheric appearance. The cosy seating area is an ideal place to relax and enjoy the outdoors.
At the rear of the garden there is a practical storage shed as well as a multifunctional space, perfect for use as a practice room, hobby room, or home office. This space is equipped with electricity, offering endless possibilities!
General
* Child-friendly living environment;
* Unobstructed view of public greenery at the front;
* Luxury kitchen;
* Modern sanitary facilities;
* Four bedrooms;
* Well maintained;
* Private backyard with multifunctional space.
* In short, definitely a property well worth viewing!
* The sellers require a deposit/bank guarantee equal to 10% of the purchase price.
Would you like to know the sales possibilities of your own home? Feel free to contact us for a no-obligation sales consultation.
Our office takes the utmost care in ensuring the reliability and accuracy of the information in this sales brochure. However, inaccuracies and omissions may occur. No rights can be derived from the information presented by us, including texts and floor plans. If you have any doubts about the accuracy of the information, please ask how it was obtained or come and view the property again. Always try to obtain all information relevant to you in advance.




